ZCRB燃气紧急切断阀
- 销售:
- 销售:
- 传真:
详情介绍
- 产品介绍
- 服务承诺
- 订货流程
ZCRB燃气紧急切断阀主要应用于航天、船舶重工、石油化工、电力装备、工业炉窑、锅炉、燃气管网、燃气处理厂、加气站、燃气泄漏报警系统、安全保护系统、消防报警系统以及各种安全管网,当发现事故隐患时快速切断,及时制止恶性事故发生。
燃气紧急切断阀 主要技术参数
原理结构:直动活塞型、先导活塞型
控制方式:常开,手动复位(特制防爆、信号反馈)
关闭速度:≤1秒
工作压力:0-0.03、0-1、0.3-9bar(其它可定制)
流体范围:煤气、天然气、液化气、沼气、等气体或燃油
流体温度:-40~120℃(其它可定制)
防爆等级:dⅡBT3-6、
标准电压:AC220V、DC24V (其它可定制)
阀体材质:铸铁、铸钢、不锈钢
产品规格: DN20-600,其他可定制

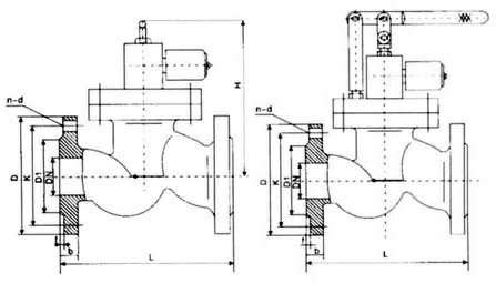
燃气紧急切断阀 主要外形尺寸
DN | 螺纹 | 法兰 | |||||||||
G | L | H | D1 | K | D | b | f | n-d | L | H | |
25 | 1 | 90 | 130 | 65 | 85 | 115 | 16 | 3 | ¢4-14 | 160 | 180 |
32 | 11/4 | 140 | 150 | 76 | 100 | 140 | 18 | 3 | ¢4-18 | 180 | 195 |
40 | 2 | 156 | 170 | 84 | 110 | 150 | 18 | 3 | ¢4-18 | 200 | 205 |
50 | 2 | 180 | 190 | 99 | 125 | 165 | 20 | 3 | ¢4-18 | 230 | 220 |
65 | 118 | 145 | 185 | 20 | 3 | ¢4-18 | 290 | 245 | |||
80 | 132 | 160 | 200 | 20 | 3 | ¢8-18 | 310 | ||||
100 | 156 | 180 | 220 | 22 | 3 | ¢8-18 | 350 | ||||
125 | 184 | 210 | 250 | 22 | 3 | ¢8-18 | 400 | ||||
150 | 211 | 240 | 285 | 24 | 3 | ¢8-22 | 480 | ||||
200 | 266 | 295 | 340 | 24 | 3 | ¢12-22 | 495 | ||||
250 | 319 | 355 | 405 | 26 | 3 | ¢12-26 | 622 | ||||
300 | 370 | 410 | 460 | 28 | 4 | ¢12-26 | 698 | ||||
350 | 429 | 470 | 520 | 30 | 4 | ¢12-26 | 787 | ||||
400 | 480 | 525 | 580 | 32 | 4 | ¢16-30 | 914 | ||||
450 | 548 | 585 | 640 | 34 | 4 | ¢20-30 | 978 | ||||
500 | 610 | 650 | 715 | 36 | 4 | ¢20-33 | 978 | ||||
600 | 720 | 770 | 840 | 38 | 5 | ¢20-36 | 1295 | ||||
1、流体若含有杂质时,请在阀前端管路上安装合适目数过滤器,且无凝固或结晶现象
2、本阀正常为水平安装,若需要垂直安装请定货前说明或另外咨询
良好的品质、优良的服务 MK体育在线官网-MK体育(中国)为你创造更多价值!
“MK体育在线官网-MK体育(中国)”的期望,不断提升服务质量,精益求精,“真诚的服务”是“MK体育在线官网-MK体育(中国)”永恒的主题。“MK体育在线官网-MK体育(中国)”严格按照IS09001-2000 质量体系认证要求,质量严格把关, 责任到人,确保生产、销售、服务的健康运行。加强与用户沟通,竭诚为广大客户提供优良产品,至善至美服务。特此我厂做出以下承诺:
产品标准:
产品严格按照中国GB、HG 标准和美国API等标准设计、制造、验收。密封面硬度达到国家规定要求,宽度超过国家标准。
售前服务:
产品介绍,技术交流,非标产品设计,疑难解答。
售中服务:
守信合同,保证及时供货,随时保持与客户联系。 对特殊或复制的产品,我厂安排技术人员对用户进行产品使用、故障排除
售后服务:
1、“MK体育在线官网-MK体育(中国)”牌产品品质期为自出厂起12个月,实行“三包”服务(包退、包换、保修)。
2、产品在使用中我厂定期组织技术、质检人员进行访问,征询用户对产品质量、 使用状况、改进意见等方面的反馈, 以便进一步提高产品质量。
3、对用户投诉质量问题,快速作出反应,售后服务人员在24-36小时(省外48小时)赶赴现场。
4、对售后服务,要求用户填写服务后的质量反馈信息表,并作出鉴定意见,以便提高MK体育在线官网-MK体育(中国)的服务质量。
1、客户如对产品有特殊要求,须在订货合同中提供以下说明:
a、结构长度;
b、连接形式;
c、公称直径、全通径、缩径、管道尺寸;
d、运行介质及温度、压力范围;
e、试验、检验标准及其他要求
2、本厂可根据客户特定要求配置各类驱动装置。
3、如由客户提供确定的阀门类型和型号时,客户应正确说明其型号的含义和要求,在供需双方理解一致的条件下签订合同。
4、期货、订货的客户请先来电函详细告诉所需的阀门型号、规格、数量以及交货时间、地点,并按总的30%预定金或全额货款及时汇入我厂帐户,其余货款待发货前汇入,以便及时安排发货。
订单流程:
1、客户采购清单传真至,或来电咨询
2、收到客户采购清单,为客户提供阀门型号选型与报价(价格清单)。
3、具体商定:交货期、特殊要求等事宜。
订货须知:
1、客户如对产品有特殊要求,须在订货合同中提供以下说明:
|
|||||
|
|||||
2、本厂可根据客户特定要求配置各类驱动装置。
|
|||||
3、如由客户提供确定的阀门类型和型号时,客户应正确说明其型号的含义和要求,在供需双方理解一致的条件下签订合同。
|
|||||
4、期货、订货的客户请先来电函详细告诉所需的阀门型号、规格、数量以及交货时间、地点,并按总的30%预定金或全额货款及时汇入我厂账户, 其余货款待发货前汇入,以便及时安排发货。
|
售中服务:
守信合同,保证及时供货,随时保持与客户联系。
对特殊或复制的产品,我厂安排技术人员对用户进行产品使用、故障排除
售后服务:
1、“MK体育在线官网-MK体育(中国)”产品品质期为自出厂起12个月,实行“三包”服务(包退、包换、保修)。
2、产品在使用中我厂定期组织技术、质检人员进行访问,征询用户对产品质量、使用状况、改进意见等方面的反馈,
以便进一步提高产品质量。
3、对用户投诉质量问题,快速作出反应,售后服务人员在24-36小时(省外48小时)赶赴现场。
4、对售后服务,要求用户填写服务后的质量反馈信息表,并作出鉴定意见,以便提高“MK体育在线官网-MK体育(中国)”的服务质量。
声明 |
|