Q41F美标球阀
- 销售:
- 销售:
- 传真:
详情介绍
- 产品介绍
- 服务承诺
- 订货流程
Q41F美标法兰球阀主要用于截断或接通介质,也可用于流体的调节与控制。美标球阀广泛用于石油、化工、冶金、电力、建筑、热力、给排水、水处理等行业。
美标球阀 执行标准
设计与制造按ANSI B16.34,JIS 2071
结构长度按JIS B2002
法兰连接尺寸按JIS B2212,2214
检验按JIS B2003
美标球阀 压力试验
试验项目 | 壳体试验 | 密封试验 | 上密封试验 | 气密封试验 | |||||
介质 | 水 | 气 | |||||||
单位 | MPa | Lbf/in2 | MPa | Lbf/in2 | MPa | Lbf/in2 | MPa | Lbf/in2 | |
压力等级 (磅级) | 150 | 3.1 | 450 | 2.2 | 315 | 2.2 | 315 | 0.5-0.7 | 60-100 |
300 | 7.8 | 1125 | 5.6 | 815 | 5.6 | 815 | |||
400 | 10.3 | 1500 | 7.6 | 1100 | 7.6 | 1100 | |||
600 | 15.3 | 2225 | 11.2 | 1630 | 11.2 | 1630 | |||
900 | 23.1 | 3350 | 16.8 | 2440 | 16.8 | 2440 | |||
美标球阀 主要零件材料
名称 | 材料 | ||||||||
阀体 | A216WCB | A352 LCB | A217WC6 | A217WC9 | A217 C5 | A351 CF8 | A351 CF8M | A351 CF3 | A351 CF3M |
球体 | A182 F6 | A182 F304 | A182 F316 | A182 F304L | A182 F316L | ||||
阀杆 | A182 F6 | A182 F304 | A182 F316 | A182 F304L | A182 F316L | ||||
手柄 | KTH350-10 | ||||||||
螺柱 | A193-B7 A320-L7 A193-B8 | ||||||||
螺母 | A194-2H A194-7 A194-8 | ||||||||

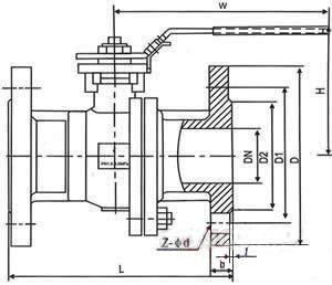
美标球阀 主要外形尺寸
型号 | 规格 (mm) | 尺寸 (mm) | ||||||||
inch | DN | L | D | D1 | D2 | b | Z-Φd | H | W | |
Q41F/H/Y-150Lb | 1/2″ | 15 | 108 | 89 | 60.5 | 35 | 12 | 4-Φ15 | 68 | 115 |
3/4″ | 20 | 117 | 98 | 70 | 43 | 12 | 4-Φ15 | 75 | 130 | |
1″ | 25 | 127 | 108 | 79.5 | 51 | 12 | 4-Φ15 | 85 | 150 | |
11/4″ | 32 | 140 | 117 | 89 | 64 | 13 | 4-Φ15 | 96 | 190 | |
11/2″ | 40 | 165 | 127 | 98.5 | 73.2 | 15 | 4-Φ15 | 107 | 230 | |
2″ | 50 | 178 | 152 | 120.7 | 92 | 16 | 4-Φ19 | 118 | 240 | |
21/2″ | 65 | 190 | 177.8 | 139.7 | 104.7 | 18 | 4-Φ19 | 145 | 280 | |
3″ | 80 | 203 | 190.5 | 152.4 | 127 | 19 | 4-Φ19 | 160 | 310 | |
4″ | 100 | 229 | 229 | 190.5 | 157 | 24 | 8-Φ19 | 185 | 330 | |
5″ | 125 | 356 | 254 | 216 | 185.7 | 26 | 8-Φ22 | 230 | 600 | |
6″ | 150 | 394 | 279 | 241.3 | 216 | 26 | 8-Φ22 | 260 | 800 | |
8″ | 200 | 457 | 343 | 298.5 | 270 | 29 | 8-Φ22 | 310 | 1000 | |
10″ | 250 | 533 | 406 | 362 | 324 | 31 | 12-Φ25 | 350 | 1200 | |
型号 | 规格(mm) | 尺寸 (mm) | ||||||||
inch | DN | L | D | D1 | D2 | b | Z-Φd | H | W | |
Q41F/H/Y-300Lb | 1/2″ | 15 | 140 | 95 | 66.5 | 35 | 15 | 4-Φ15 | 72 | 115 |
3/4″ | 20 | 152 | 117 | 82.5 | 43 | 16 | 4-Φ19 | 75 | 130 | |
1″ | 25 | 165 | 124 | 89 | 51 | 18 | 4-Φ19 | 85 | 150 | |
11/4″ | 32 | 178 | 133 | 98.5 | 64 | 19.5 | 4-Φ19 | 95 | 180 | |
11/2″ | 40 | 190 | 156 | 114.3 | 73.2 | 21 | 4-Φ22 | 110 | 230 | |
2″ | 50 | 216 | 165 | 127 | 92 | 23 | 8-Φ19 | 120 | 240 | |
21/2″ | 65 | 241 | 190.5 | 149.4 | 104.7 | 26 | 8-Φ22 | 150 | 280 | |
3″ | 80 | 283 | 210 | 168.5 | 127 | 29 | 8-Φ22 | 165 | 310 | |
4″ | 100 | 305 | 254 | 200.2 | 157 | 32 | 8-Φ22 | 190 | 330 | |
5″ | 125 | 381 | 279 | 235 | 185.7 | 35 | 8-Φ22 | 240 | 600 | |
6″ | 150 | 403 | 318 | 270 | 216 | 37 | 12-Φ22 | 270 | 800 | |
8″ | 200 | 502 | 381 | 330 | 270 | 42 | 12-Φ25 | 315 | 1000 | |
10″ | 250 | 568 | 445 | 387.5 | 324 | 48 | 16-Φ29 | 380 | 1200 | |
型号 | 规格 (mm) | 尺寸(mm) | ||||||||
inch | DN | L | D | D1 | D2 | b | Z-Φd | H | W | |
Q41F/H/Y-600Lb | 1/2″ | 15 | 165 | 95 | 66.5 | 35 | 15 | 4-Φ15 | 88 | 115 |
3/4″ | 20 | 190 | 118 | 82.5 | 43 | 16 | 4-Φ19 | 98 | 130 | |
1″ | 25 | 216 | 124 | 89 | 51 | 18 | 4-Φ19 | 105 | 150 | |
11/2″ | 40 | 241 | 156 | 114.3 | 73.2 | 23 | 4-Φ22 | 135 | 180 | |
2″ | 50 | 292 | 165 | 127 | 92 | 26 | 8-Φ19 | 155 | 240 | |
3″ | 80 | 356 | 210 | 168.2 | 127 | 32 | 8-Φ22 | 175 | 280 | |
4″ | 100 | 432 | 273 | 216 | 157 | 38 | 8-Φ25 | 210 | 330 | |
6″ | 150 | 559 | 356 | 292 | 216 | 48 | 12-Φ29 | 340 | 800 | |
8″ | 200 | 660 | 419 | 349 | 270 | 56 | 12-Φ32 | 400 | 1000 | |
10″ | 250 | 787 | 508 | 432 | 324 | 64 | 16-Φ35 | 440 | 1200 | |
良好的品质、优良的服务 MK体育在线官网-MK体育(中国)为你创造更多价值!
“MK体育在线官网-MK体育(中国)”的期望,不断提升服务质量,精益求精,“真诚的服务”是“MK体育在线官网-MK体育(中国)”永恒的主题。“MK体育在线官网-MK体育(中国)”严格按照IS09001-2000 质量体系认证要求,质量严格把关, 责任到人,确保生产、销售、服务的健康运行。加强与用户沟通,竭诚为广大客户提供优良产品,至善至美服务。特此我厂做出以下承诺:
产品标准:
产品严格按照中国GB、HG 标准和美国API等标准设计、制造、验收。密封面硬度达到国家规定要求,宽度超过国家标准。
售前服务:
产品介绍,技术交流,非标产品设计,疑难解答。
售中服务:
守信合同,保证及时供货,随时保持与客户联系。 对特殊或复制的产品,我厂安排技术人员对用户进行产品使用、故障排除
售后服务:
1、“MK体育在线官网-MK体育(中国)”牌产品品质期为自出厂起12个月,实行“三包”服务(包退、包换、保修)。
2、产品在使用中我厂定期组织技术、质检人员进行访问,征询用户对产品质量、 使用状况、改进意见等方面的反馈, 以便进一步提高产品质量。
3、对用户投诉质量问题,快速作出反应,售后服务人员在24-36小时(省外48小时)赶赴现场。
4、对售后服务,要求用户填写服务后的质量反馈信息表,并作出鉴定意见,以便提高MK体育在线官网-MK体育(中国)的服务质量。
1、客户如对产品有特殊要求,须在订货合同中提供以下说明:
a、结构长度;
b、连接形式;
c、公称直径、全通径、缩径、管道尺寸;
d、运行介质及温度、压力范围;
e、试验、检验标准及其他要求
2、本厂可根据客户特定要求配置各类驱动装置。
3、如由客户提供确定的阀门类型和型号时,客户应正确说明其型号的含义和要求,在供需双方理解一致的条件下签订合同。
4、期货、订货的客户请先来电函详细告诉所需的阀门型号、规格、数量以及交货时间、地点,并按总的30%预定金或全额货款及时汇入我厂帐户,其余货款待发货前汇入,以便及时安排发货。
订单流程:
1、客户采购清单传真至,或来电咨询
2、收到客户采购清单,为客户提供阀门型号选型与报价(价格清单)。
3、具体商定:交货期、特殊要求等事宜。
订货须知:
1、客户如对产品有特殊要求,须在订货合同中提供以下说明:
|
|||||
|
|||||
2、本厂可根据客户特定要求配置各类驱动装置。
|
|||||
3、如由客户提供确定的阀门类型和型号时,客户应正确说明其型号的含义和要求,在供需双方理解一致的条件下签订合同。
|
|||||
4、期货、订货的客户请先来电函详细告诉所需的阀门型号、规格、数量以及交货时间、地点,并按总的30%预定金或全额货款及时汇入我厂账户, 其余货款待发货前汇入,以便及时安排发货。
|
售中服务:
守信合同,保证及时供货,随时保持与客户联系。
对特殊或复制的产品,我厂安排技术人员对用户进行产品使用、故障排除
售后服务:
1、“MK体育在线官网-MK体育(中国)”产品品质期为自出厂起12个月,实行“三包”服务(包退、包换、保修)。
2、产品在使用中我厂定期组织技术、质检人员进行访问,征询用户对产品质量、使用状况、改进意见等方面的反馈,
以便进一步提高产品质量。
3、对用户投诉质量问题,快速作出反应,售后服务人员在24-36小时(省外48小时)赶赴现场。
4、对售后服务,要求用户填写服务后的质量反馈信息表,并作出鉴定意见,以便提高“MK体育在线官网-MK体育(中国)”的服务质量。
声明 |
|